Campagne 2022 Post 1
29 novembre 2022
Le Troisième cercle
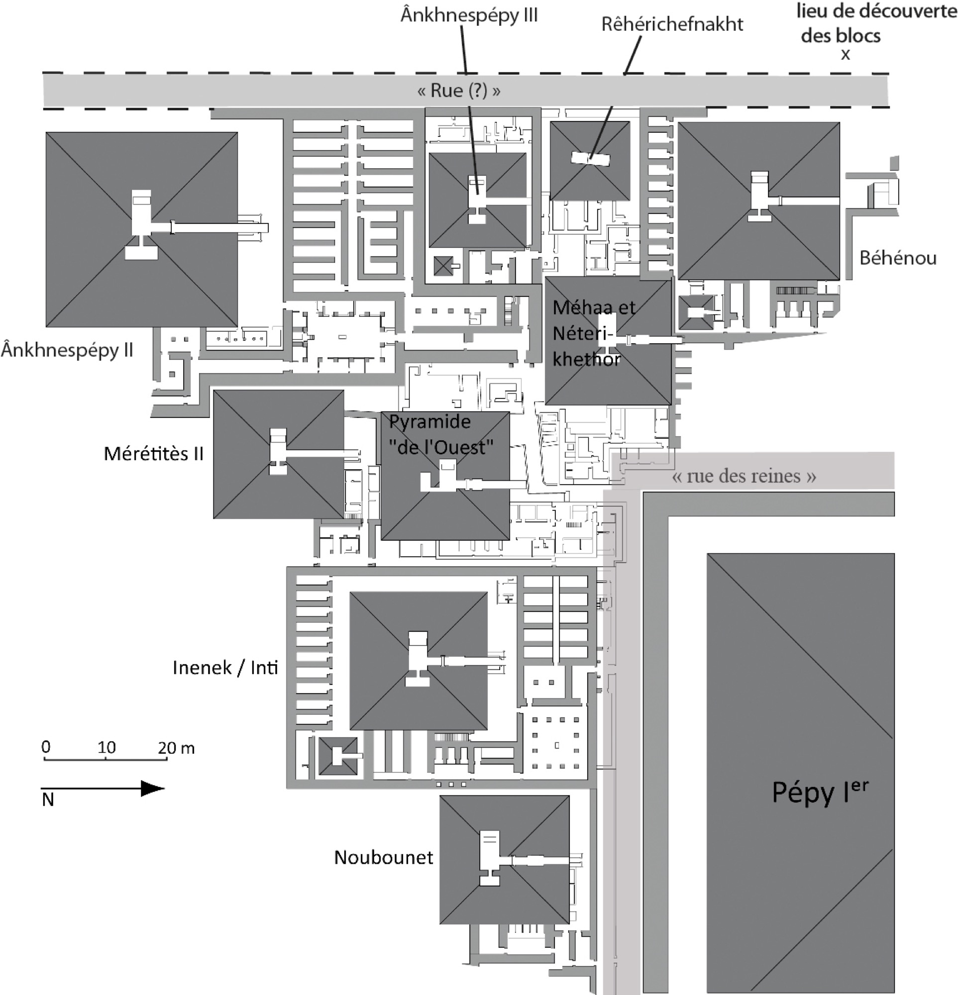
La campagne 2022 de la MafS a officiellement enfin commencé. Cette année, un nouveau chapitre de l’histoire des fouilles de la nécropole s’ouvre avec l’exploration du « Troisième cercle ». La nécropole de Pépy Ier est articulée autour de la pyramide du roi qui constitue ainsi « le Premier cercle » ; autour de ce monument ont été construites les pyramides de la famille royale (épouses, fils et parentes plus éloignées), soit le Deuxième cercle. Nous nous attendons maintenant à découvrir dans le Troisième cercle des tombeaux appartenant aux plus importants dignitaires du règne de Pépy Ier (vizirs et autres hauts fonctionnaires).

En vérité, une page de ce nouveau chapitre a été écrite il y a 10 ans déjà lorsqu’en fouillant dans l’angle nord-ouest du complexe de la reine Béhénou, nous avons découvert épars dans les sables éoliens de grands blocs de calcaire décorés de plusieurs colonnes d’un texte hiéroglyphique. À notre surprise et joie, ce texte était déjà connu. Les quelques lignes conservées reprenaient à l’identique (ou presque) l’autobiographie du vizir Ouni, inscrite dans sa tombe à Abydos. Ces nouveaux blocs semblaient donc indiquer qu’Ouni s’était aussi fait bâtir une tombe à Saqqâra, dans la nécropole du roi Pépy Ier qu’il avait servi pendant la majorité de sa carrière.
Après dix longues années d’attente, nous espérons bien cette année découvrir l’emplacement du mastaba d’Ouni d’où ces blocs devaient parvenir. De toute évidence, celui-ci a subi les attaques des carriers, mais nous devrions au moins retrouver les fondations de ce tombeau, si ce n’est les restes de l’autobiographie. Étant donné la taille grandiose de l’inscription, on peut s’attendre à un bâtiment de première importance qui pourrait rivaliser avec les mastabas de Mererouka ou Kagemni dans la nécropole de Téti.
La suite (de l’autobiographie on l’espère) au prochain post…
Posts récents


