Les Philosophes

2016_03_21_7512.jpg

Le bâtiment des Philosophes a été entièrement rénové suite à un incendie survenu en 2008. La rénovation a été inaugurée en décembre 2014. Si l’édifice offre désormais des espaces lumineux et équipés qui répondent aux nouvelles exigences en matière d’économie d’énergie et de sécurité, il n’a rien perdu de son cachet historique qui rappelle ses origines d’école de chimie, comme en témoignent la cheminée de brique encore apparente et les décors en faux marbre fraîchement restaurés.

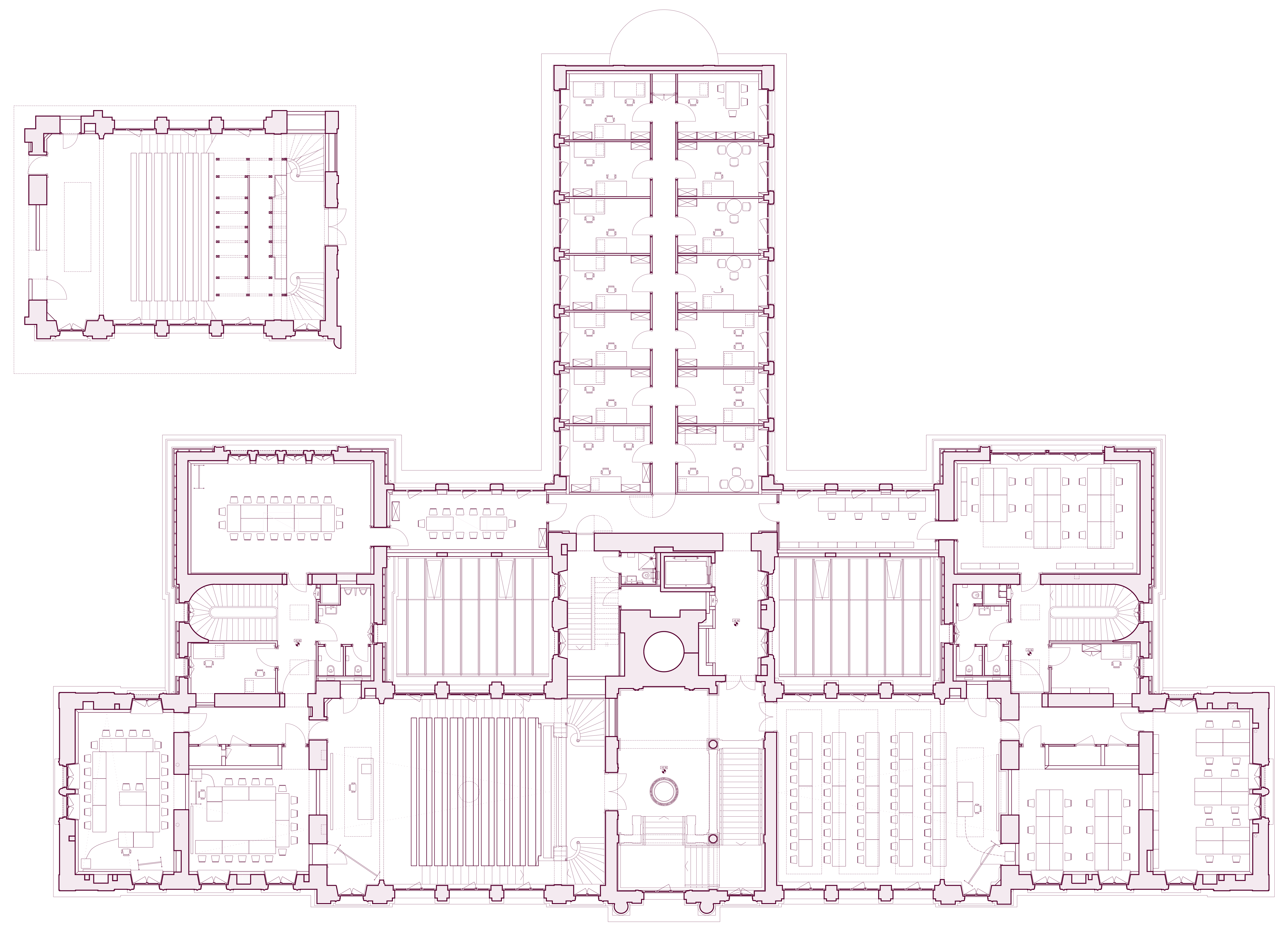
Plan du bâtiment

  • Rez-de-chaussée

    Rez-de-chaussée

  • 1er étage

    1er étage

  • 2ème étage

    2ème étage

  • 3ème étage

    3ème étage

  • Sous-sol

    Sous-sol

Retour à la carte générale